木樁專項方案-九濱路樁基施工方案
來源:百度文庫
一、編制依據
1.重慶市設計院提供的施工設計圖。2. 本單項工程施工時所采用的相關規范及標準:
1)《工程測量規范》(GB50026-93)
2)《鋼筋焊接及驗收規程》(JTJ18-2003)
3)《混凝土結構工程施工及驗收規范》(GB50204-2002)
4)《鋼筋機械連接通用技術規程》(JGJ107-2003)
5)《公路橋涵施工技術規范》(JTJ041-2000)
6)《市政橋梁工程質量檢驗評定標準》(CJJ1-90)
7)《鋼筋混凝土用熱軋帶肋鋼筋》(GB1499-98)
8)《鋼筋混凝土用熱軋光圓鋼筋》(GB13013-91)
9)《組合鋼模板技術規范》(GB20214-2001)
10)《建筑工程施工質量驗收統一標準》(GB20300-2001)
11)《混凝土強度檢驗評定標準》(GBJ107-87)
12)《建筑施工扣件式鋼管腳手架安全技術規范》(JGJ130-2001)
二、單項工程簡介
1.工程簡介:橋墩基礎根據地質條件選用群樁承臺和巖石錨桿擴大基礎。本項目部負責12#~22#橋墩樁基的施工,共有44根樁,橋墩承臺尺寸為8.0×8.0×2.5m,12#~22#橋墩每個承臺下設置4根圓樁,樁徑為2.0m,樁基嵌入中風化巖深度為3倍樁徑;23#墩為巖石錨桿擴大基礎,尺寸為7.0×6.0×2.0m,并設置有2Φ25地錨桿。
24號橋臺為復合式橋臺,分靠江側和靠岸側兩部分,其中靠江側橋臺基礎采用樁承臺,共設有14根樁,靠岸側橋臺基礎采用擴大基礎??拷瓊葮蚺_臺身包括前墻和側墻,前墻為重力式C30砼結構;側墻為鋼筋砼結構,墻身頂部設預應力砼懸挑翼緣??堪秱葮蚺_臺身僅含前墻,為重力式C25片石砼結構。24號橋臺包括3段擋土墻,擋土墻采用重力式和衡重式擋土墻。橋臺和擋土墻鑲面材料采用青條石面磚。
在K1+320m段有一小型危巖,長約16m,厚約4m,高度5m,與21號樁位關系密切,對該段工程施工及工程建成后均會產生不良影響,因此需要將該段危巖清除。2.地質地貌及水文:
本工程位于長江左岸,為河谷岸坡地貌,岸坡呈帶狀。地面高程174.3~218.8m,地形坡度角為25~69°,為陡坡陡崖帶。成渝鐵路由23#墩與24#橋臺之間經過。
東側是長江,自南向北流經工程區東側,江水最大流量64100m3/s,50年一遇洪水位為193.89m,歷年最高洪水位為219.16m(1905年洪水位),常年洪水位182.0m,常年枯季水位165.00m左右,最低枯水位160.50m左右。
工程位于龍王洞背斜西翼近軸部地段,沿線無區域性斷層通過,地質構造簡單。巖層產狀:230~245°∠10°;砂巖中主要發育二組裂隙,75~100°∠65~70°,裂面局部呈波狀,延伸長,基本無充填物,間距1~3m,結構面結構合一般;第2組裂隙產狀330~360°∠80~85°,裂隙寬度2~8mm,間距2~4mm,局部有粘土質填充,結合情況一般。
場地地表水及地下水排泄條件較好,地下水不易貯存,地形較高的斜坡地帶基本無地下水,架空橋墩基礎多大位于常年洪水位之下。
3.施工難點:
本工程道路狹窄,無材料場地,在長江陡岸邊施工,高差大且安全隱患大,受洪水威脅大,樁基開挖必須搶工開挖,樁基、承臺混凝土及所有墩身(185標高以下)混凝土澆筑必須在洪水期以前完成,才能保證工程不受洪水影響。
4、樁基主要數據:
| 序號 | 墩號 | 樁徑 | 樁長 | 樁底標高 | 樁頂標高 | 地面標高 |
| 1 | 12# | 2000 | 10.6 | 176.5 | 187.1 | 193.6 |
| 2 | 13# | 2000 | 10.0 | 163.0 | 173.0 | 178.2 |
| 3 | 14# | 2000 | 9.7 | 163.0 | 172.7 | 177.7 |
| 4 | 15# | 2000 | 9.9 | 167.4 | 177.3 | 182.9 |
| 5 | 16# | 2000 | 9.7 | 164.5 | 174.2 | 178.7 |
| 6 | 17# | 2000 | 9.6 | 163.5 | 173.1 | 181.2 |
| 7 | 18# | 2000 | 12.7 | 165.8 | 178.5 | 181.2 |
| 8 | 19# | 2000 | 17.0 | 169.5 | 186.5 | 193.2 |
| 9 | 20# | 2000 | 10.0 | 165.5 | 175.5 | 182.6 |
| 10 | 21# | 2000 | 11.0 | 161.0 | 172.0 | 173.5 |
| 11 | 22# | 2000 | 10.8 | 162.0 | 172.8 | 175.4 |
| 12 | 23# | —— | —— | 196.0 | 198.0 | 209.3 |
| 13 | 24#臺 | 1800 | —— | 196.0 | 210.0 | 210.7 |
| 合計 | ∑484.0M | |||||
三、施工安排
1、人員安排在施工人員安排上,選用具有豐富同類工程施工經驗的專業化施工隊伍進行操作施工。在人員數量上盡全力安排得既不造成人力資源浪費又不會影響工程進度計劃的實施。根據工程施工環境并結合工程實際情況,計劃安排20人負責承臺表土的開挖,挖方量較大的承臺調用挖掘機開挖;安排120人負責樁基土石方開挖及外卸;安排10人負責鋼筋制作、安裝;安排40人負責混凝土的澆筑工作。
2、設備安排
樁基的施工是整個工程進度以及搶洪水期的關鍵,因此在機械設備安排上,施工前期一定按計劃上足設備,并留有余地,加強保養和維修,保證設備的完好率。
樁基施工計劃安排25臺卷揚機用來吊運樁基井內及承臺開挖的土方、石方等;安排1輛挖掘機用來挖掘挖方量較大的承臺表層土方,加快承臺及土石方施工進度;樁基開挖由專業施工隊伍自備水冷型轉機,施工隊伍自備潛水泵抽排井內的轉機冷卻水;安排15臺潛水泵,抽取長江水用于向各個承臺水冷型轉機的冷卻以及雨、污水的抽排;安排6臺空壓機,一方面供應氣轉工作,另一方為基坑開挖較深時向坑內送風;安排3臺巖石切割機,用于切割承臺位置的石方;安排2臺鋼筋切割機、2臺鋼筋彎曲機、2臺鋼筋調直機、4臺電焊機等用于鋼筋的制安。
由于施工前期水、電暫時無法正常供應,因此開工前期投入2臺50KVA柴油發電機組,用于供應工程的施工用電。市政水、電接至現場后,保留一臺發電機組待命,市政電網停電時用于急需用點設備的運作。
3、材料安排
作為工程的控制因素之一,同時也是工程進度的關鍵。我項目部十分重視工程材料的安排落實,在材料需求之前做好材料的采購和調用,決不出現因材料的不到位而影響工程的情況的發生。
根據工程實際情況,樁基工程主要所用材料及用途如下:
鋼管:主要用于樁基開挖時搭設腳手架吊渣以及搭設臨時設施。
竹編席:搭設臨時工棚用于民工住宿。
石棉瓦:主要用于臨時設施的上頂擋雨及遮陽等。
彩條布:主要用于施工現場的擋雨及遮陽,便于雨天及高溫天氣下搶工。
楠竹:主要用于搭設便道、高邊坡邊緣的臨時護欄,保障行人及施工人員的安全。
河砂、碎石、水泥:用于工程護壁的澆筑以及條石擋墻的砌筑。
商品混凝土:主要用于樁體的澆筑。
鋼筋:主要用于樁基護壁以及樁體。
四、施工方案:
㈠施工工序施工準備工作→測量定位放線→承臺土石方開挖→樁基定位→樁基土方開挖→鋼筋砼護壁澆筑→石方開挖→基底標高復測→基坑驗收→樁基鋼筋籠制作、安裝→樁基砼澆筑→承臺鋼筋綁扎→模板安裝、支撐→承臺砼澆筑→混凝土養護
㈡施工方法
1. 測量放線:
1)首先對基點樁等資料進行復測。
2)測定樁中心點和承臺基礎的位置,基礎開挖及平面定位利用控制網測量指導開挖。
3)樁基開挖尺寸控制采用線繩交會法控制。
4)基礎達到或接近設計要求時,用控制點位復測,精確放出樁中心,以便于鋼筋的綁扎。
2.承臺土石方開挖:
1)12#墩處危巖位置較高,在12#墩土石方開挖前用鋼管腳手架搭設工作平臺,采用Ф25@1500錨桿灌漿支護固定。
2)21#墩承臺位置較低,為搶在洪水期前完成施工,該處上方的危巖準備在21#承臺澆筑成形后,在危巖下方用鋼管搭設腳手架平臺,利用巖石切割機分塊切除。
3)根據現場地質、地層分布并結合現場實際情況,在粗測位置處用挖掘機平場并開挖承臺范圍內的土方,為保證邊坡下方人、機安全和開挖面四壁的穩定性,人工清除機械粗挖后的土方及危巖,使形成穩定邊坡。
4)承臺石方開挖,采用切割機切割,人工破除外卸,減少對邊坡的擾動。
3.樁基開挖:
1) 待承臺土石方開挖至設計標高后,測量放出樁孔位置。
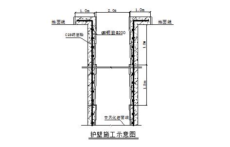
2)為保護樁基四周孔壁不受擾動,開挖采用人工與機械結合開挖方式進行。土基部分開挖時,護壁采用C25砼作護壁(見附圖)。護壁模板采用定型鋼模板,為縮短周期加快進度,按每循環進尺120cm進行澆筑。
3) 護壁鋼筋綁扎:箍筋采用定型加工,將鋼筋按照設計要求的尺寸焊接固定,豎向鋼筋按1.2米制作,兩頭作彎鉤。綁扎時,將豎向鋼筋一端插入土內,另一端與上環豎向鋼筋掛接。交叉點用扎絲綁扎牢固,保證設計尺寸和要求。4)為避免開挖過程中,雨水及石渣等掉入樁基,開挖過程中首先施作鎖口,鎖口圈高出地坪20cm,樁口附近地坪留足足夠的寬度,棄碴距樁口邊緣不得少于2.0m,同時樁口周圍采用鋼管架和安全網進行擋護,頂部采用彩條布遮蓋防止雨水灌入樁基。
5)提升:采用小型卷揚機提升,并嚴格控制每次出碴的數量。支撐架采用鋼管腳手架搭設,承重桿使用I10工字鋼,各連接件必須牢固,其結構形式與每次提升的重量相符。
6)棄渣處理:利用沿江位置,用塊片石進行砌筑擋土墻臨時堆放棄渣,待路堤形成后用于回填。棄渣距各樁口邊緣的距離必須保證不得小于2.0m。
7)樁基深度大于10m時,為防止有害氣體的產生對井下作業人員的影響,配風機對井底送風。樁基開挖工作人員采取鋼筋梯上下,嚴禁利用卷揚機上下,工具可裝入籮筐用卷揚機吊運,其順序為:下時工具先下,待工具到位后,人才可下井;上時工具先裝好,人上井后,再提工具筐。井下人員必須戴好安全帽作業。8)地下水:水量大時采用潛水泵在集水坑抽排。水少時采用半節汽油桶集水,用導管將分散的滲水引入桶內,快滿時用卷揚機提升排出,為防止觸電,井下采用36V低壓照明。
9)井內開挖尺寸控制:在樁口鎖口邊由測量人員施放軸線十字位置,用紅油漆標注準確。每進尺1.2m,用線繩交會出中心軸,用垂球放出工作面軸心,再用鋼尺檢查周邊尺寸或用定型模具順樁軸線檢查,以確保樁徑及垂直度。
10)樁基開挖在滿足設計要求后,通知監理工程師進行驗收,驗收合格后在24小時以內用砂漿進行封底,再進行下一工序的準備和施工作業。
4.樁基鋼筋施工
1)鋼筋入場有產品合格證、質保證明、出廠證明的資料。入場后進行批量抽檢與焊接試件送檢,向監理工程師報送鋼筋有關資料,經允許后,方可投入工程使用。
2)加工制作前進行除銹、除油污、調直及斷面檢查。按設計要求規格尺寸進行分類加工。
3)各類鋼筋按設計尺寸加工成型后掛牌堆碼整齊,并用彩條布進行遮蓋以防止雨淋。
4) 鋼筋制安:
樁基鋼筋綁扎,在樁外進行現場綁扎,其具體做法是:加強箍采用定型加工并焊接牢固,將樁基鋼筋按照設計要求的尺寸、間距主筋與加強箍焊接固定,形成鋼筋籠,利用吊車將鋼筋籠就位,工人利用樁基四壁進行固定,并保證設計尺寸和要求。
5)鋼筋綁扎時主筋接長采用直螺紋連接,箍筋用鐵絲綁扎牢固。
6)在嚴格自檢后將隱檢表、自檢表向監理工程師報驗。經監理工程師認可后,可進入下一工序作業。
5.樁基砼作業:
采用商品砼泵送工藝進行澆筑作業,樁基較深時先用鋼管架固定砼溜筒,分節深入樁基內,距樁底2.0m以內,以防止砼離析,砼澆筑時隨砼面升高逐節拆卸溜筒。砼澆筑過程中,插入式振動棒插入下層混凝土5cm左右進行分層振搗,混凝土一次澆筑成型。澆筑過程中,隨機取樣進行砼試件的制作。
5.承臺施工:
1)在樁基砼澆注完畢后,清理出承臺位置,并用砂漿封底,進行鋼筋綁扎。2)鋼筋需提前放樣加工制作,分類存放并吊牌標識,安裝時,現場綁扎、安裝,保證與預埋鋼筋連接牢固。并準確預埋墩身鋼筋。
3)鋼筋綁扎完成后,報請監理工程師驗收,合格后進行承臺的模板安裝,安裝模板時采用同標號的砂漿墊塊,用鐵絲綁扎在主筋上,從而保證鋼筋的混凝土的保護層厚度。
4)混凝土澆筑前,將樁頂砼表面的殘余物清理干凈并鑿毛露出粗骨料,以保證與承臺的接觸。砼澆筑采用商品砼泵送工藝進行,用插入式振動棒進行振搗,砼澆筑完后,及時進行養護。
五、樁基施工計劃:
項目部根據設計圖紙和樁基工程量,對該部分施工工期進行如下安排(按三班制作業):| 名稱 | 3月 | 4月 | |||||
| 25 | 31 | 5 | 10 | 15 | 25 | 30 | |
| 承臺開挖 | ---------- | ||||||
| 樁基開挖 | ----------------------------------------------------- | ||||||
| 護壁澆筑 | ----------------- | ||||||
| 鋼筋制安 | ------------------------------------------------------------------ | ||||||
| 砼澆筑 | -------------------------- | ||||||
六、安全、質量保證措施:
對于安全、質量的控制和管理,始終貫通于整個施工過程,在樁基施工過程中顯得尤其重要。本工程樁基為人工挖孔樁,每墩有4個樁,開挖點集中,互相干擾,因此,我項目部成立了以項目經理為核心的安全、質量領導小組(見附圖),并落實專人對該部分施工的安全、質量進行管理,在樁基開挖前,項目部已給參戰的民工及自有職工進行安全教育,使職工牢固樹立安全意識,并落實到行動中去。㈠安全保證措施
1.施工現場設置各種安全標志,場內的已開挖的溝、坑以及高坡等邊緣設安全護欄。2.現場施工人員必須按規定戴安全帽、胸牌,基坑邊作業人員需戴安全帶及安全繩。
3. 樁基工作人員采取鋼筋梯上下,工具可用籮筐送下,其順序為:下時工具先下;上時工具先裝好,人上井后再提工具筐。井下人員必須戴好安全帽作業。
4.施工現場特殊作業人員需持證上崗,崗前進行培訓,嚴禁違章作業。
5.開挖過程中,沿基坑頂面設置排水溝,當坑壁松塌或遇有涌水、涌砂影響基坑邊坡穩定時,立即加固防護。
6.在對危巖進行處理過程中,加強對危巖體的觀察,同時危巖下方危險區用警戒線將工程無關人員隔離開。
7. 危巖處理所產生的巖石塊妥善處理,防止其滾落傷害下方的已建承臺及橋墩等。
8、為防止觸電,井下采用36V低壓照明。樁外用電,則采取預防直接接觸帶電體的保護裝置。
㈡質量保證措施
1.樁基工程屬于隱蔽性結構工程,因此嚴格每道工序自檢。凡屬隱蔽工程項目,首先由作業隊、現場施工人員、項目經理部逐級進行自檢,自檢合格后,會同監理工程師一起復檢,檢查結果填入驗收表格,由雙方簽字。2.用于樁基工程的各種原材料,如鋼材、水泥、砂、石等進行認真的檢驗,把好材料進貨關,禁止使用不合格材料。
3.對于各道工序的進行必須符合相應規范,嚴禁不合格品的出現。
附圖:安全管理組織機構圖
附圖:質量管理組織機構圖
提升支架橫桿計算書
情況說明:本工程樁基開挖,提升井架采用Φ48mm鋼管腳手架搭設,提升用橫桿采用I10鋼,支架跨度約4m寬,一次所提升石渣最大重量約350Kg,核定方案選用I10是否滿足要求。材料的[σ]=170Mpa,[τ]=100Mpa,E=2.1×105 Mpa;梁的[v/l]=1 /400。不計算梁的自重影響,驗算如下:
(1)求內力及內力圖
分析判斷:荷載P在跨中時產生最大彎矩Mmax,當P在支座內側時,產生最大剪力V max,其最不利的m圖、V圖如下所示:
P=350Kg× 10N/Kg=3.5kN
Mmax=。
Vmax=P=3.5kN

(2)正應力強度驗算
查型鋼表工字鋼I10相關已知條件如下:
Wz=49 cm3 Iz=245cm4
Iz:=8.95cm d=4.5mm
由相關公式[σmax] =代入數據可知
[σmax]= 7.14×107Pa=71.4Mpa<[σ]=170Mpa符合要求。
(3)剪應力強度校核:
支座內側截面的中性軸上各點是τmax所在的危險點。
τmax==8.690Mpa﹤[τ]安全
(4)剛度校核:
最大饒度Vmax發生在梁跨中點截面,由兩次積分法可求得
Vmax=則有
=2.268×10-3
= 滿足要求。
根據以上驗算,提升支架橫桿選用I10能滿足要求。(文章來源:百度文庫,侵刪)
以上就是"木樁專項方案-九濱路樁基施工方案"文章的全部內容,如果您有松木樁、杉木樁、落葉松等需求,歡迎咨詢網站右上方的廠家熱線,我們將為您竭誠解答!
本文鏈接:http://m.metasplat.com/shili/1/211.html,轉載請注明出處!
- 相關文章
- 濕地花城、公園綠地黃陂2022年綠化方案